등기부등본은 어디서 발급 하는지 알고 있는데, 건축물대장은 어디서 발급 받을 수 있을까요? 바로 세움터 입니다. 많이 들어보지 않으셨죠? 바로 세움터에서 건축물 대장 등 다양한 서류를 무료로 발급 받을 수 있습니다. 공공기관에 평면도 제출할 일이 있어서, 발급 방법 공유하니 잘 활용하시기 바랍니다.

부동산 실거래 확인 필요한 이유 조회 방법
세금기준이 되는 공시지가와 더불어 부동산 실거래 가격 확인이 꼭 필요합니다. 그래야 정보의 비대칭으로 인한 불공정한 거래를 예방할 수 있죠. 매매, 전세, 월세 계약 전 꼭 확인해 보시고 진
bluepants.tistory.com
1. 세움터란
건축행정 업무 전반의 전자화를 통해 관청 방문없이 인터넷으로 편리하게 인허가 신청을 하고, 공무원은 건축행정(인허가 착공 분양 준공(사용승인) 철거 등) 업무 전반을 전자적으로 ONE STOP 처리하게 하는 국가표준정보시스템입니다.
건축행정시스템으로서 건축 인허가 34종을 비롯하여 총 150종의 민원을 관리하고 있습니다.
- 건축인허가
- 주택인허가
- 건축물대장
- 정비사업
- 사업자
- 건축위원회심의
- 녹색건축
- 해체/멸실
2. 세움터 업무
| 건축업무 | 건축허가, 착공, 사용승인, 건축신고, 공작물, 가설건축물, 위반건축물 |
| 주택업무 | 주택건설사업계획승인, 착공, 사용검사, 행위허가 |
| 건축물대장업무 | 대장작성, 기재사항변경, 열람, 발급, 말소 |
| 정비사업 | 행정계획, 조합, 사업시행인가, 관리처분, 착공, 준공인가, 정비사업전문관리업 |
| 건축관련업자 | 건축사, 건축사사무소, 임대사업자, 주택건설사업자, 주택관리사 |
| 통계 | 건축허가통계, 건축물착공통계, 건축물통계, 주택건설실적 |
3. 발급 가능한 서류
아래의 서류를 온라인에서 발급 및 열람이 가능합니다.
- 건축물대장 5종(총괄표제부, 일반건축물, 다가구, 표제부, 전유부)
- 건축물현황도(배치도, 평면도) 외

건축물 현황 자료는 건축물 현 소유자가 아닌 경우에도 가능합니다.
4. 세움터 이용 방법

일반회원/법인회원/어린이회원/외국인회원 으로 가입 후 이용이 가능합니다.
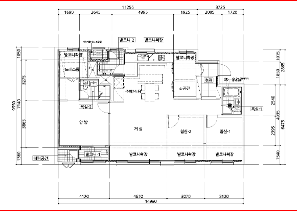
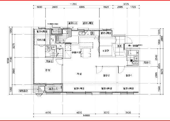
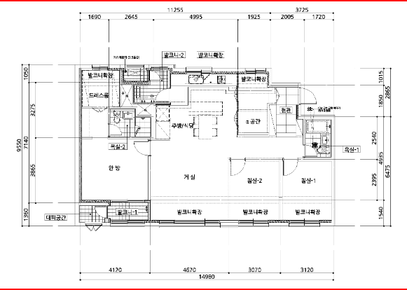
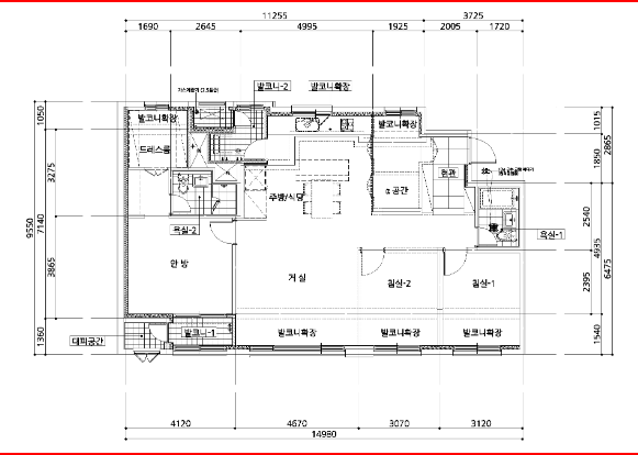
5. 배치도 평면도 신청


공공기관에 제출할 평면도 필요하여 발급해 봤습니다.
6. 배치도 평면도 신청 결과
원하는 자료를 아래와 같이 겟 했습니다.

7. 세움터 기타 서비스
- 건축통계
- 건축정보지도조회
- 공사현장불편신고
- 온라인 건축심의서비스
- 지적전산파일제공
- 에너지절약계획서 검토수수료 납부
8. 기타
평면도 발급하기 위해 인증을 해야 하는데, 인증하는 절차가 불편합니다. 다른 공공기관과 다른 듯 합니다.
그래도 원하는 자료를 받을 수 있어서 참을 수 있었습니다.
지금 까지 여려분에게 생소하지만 알짜베기 정보를 제공해 주는 세움터 이용방법에 대해 알려드렸습니다.
항공권 가장 싸게 사기 공동구매 땡처리 항공권 구매 방법
여행의 시즌이 다가 왔습니다. 항공권 어디서 싸게 살 수 있을까요? 스카이스캐너? 카약? 아닙니다. 바로 '공동구매 항공권'을 이용하는 것입니다. 땡처리 항공권 과의 차이점 및 어디서 구매할
bluepants.tistory.com
'별의별 정보' 카테고리의 다른 글
| 항공권 싸게 사기- 구글 항공권 가격추적기능 활용 vs 공동구매항공권 (0) | 2023.12.19 |
|---|---|
| 전세사기 예방법 반드시 계약 전 확인 사항 (2) | 2023.12.18 |
| 항공권 가장 싸게 사기 공동구매 땡처리 항공권 구매 방법 (0) | 2023.12.15 |
| 2024 장윤정 남양주 콘서트 2023 장윤정 연말 디너쇼 알아보기 (0) | 2023.12.15 |
| 무주택 세대주 위한 내집마련 디딤돌대출 이용하기 (0) | 2023.12.14 |