2025년 1월 아파트 분양이 56% 급감 한다는 소식 들으셨나요? 이런 와중에 2025년 1월에 방배동 래미안 원페를라 일반분양이 예정되어 있어 관련 소식 알려드립니다. 관심 있는 분들은 일정 메모 후 청약 신청하시기 바랍니다.

원페를라 위치
내방역과 이수역 사이에 위치
서초구 방배동 818-14 (지번)
원페를라 건설사
삼성물산(주)
원페를라 분양시기
2025.01.17
원페를라 입주시기
2025.11월
원페를라 단지규모

22층 총 16동
원페를라 일반분양

총 1097세대 중 482세대
- 59m2(157세대)
- 84m2(265세대)
- 106m2(56세대)
- 120m2(4세대)
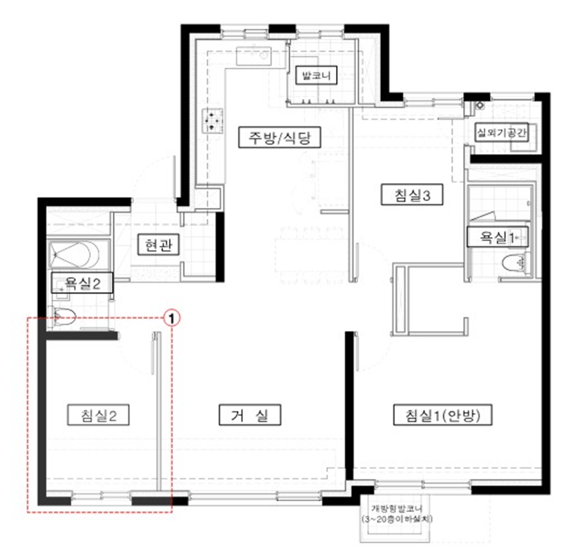
래미안 원페를라 국민평형 평면도

래미안 원페를라 분양가
예상 분양가: 평당 6,800만원 ~ 7,000만원 초반 예상
59㎡ (17.08억), 84㎡ (23.22억) 예상
래미안 원페를라 청약 정보

청약 자격: 서울/수도권 거주자, 세대주, 청약통장 가입 2년 경과, 예치금 충족 등 (모집 공고 확인 필수)
청약 일정:
모집공고 2025년 1월 17일 (예정)
청약접수 2025년 2월 4일 (예정)
당첨자 발표 2025년 2월 12일 (예정)
계약일 2025년 2월 25일 ~ 3월 2일 (예정, 변동 가능)
청약 방법: 상단의 청약홈 ( www.applyhome.co.kr )
전매 제한: 3년 예상
재당첨 제한: 10년
투기과열지구: LTV 50% 적용
계약금: 20% 예상
중도금 대출: 60% 예상
입주 시 필요 현금 (84㎡ 기준): 8.95억 + @ (취득세, 옵션 등)
9호선 연장 강동하남남양주 기본계획 승인 2031년 개통
말도 많고 탈도 많았던 9호선 연장 계획이 드디어 공식적 발표 되었습니다. 카더라 통신이 아니라 국토교통부에서 발표한 내용입니다. 관련 내용 아래에서 확인 하시기 바랍니다. 황금 라인인 9
bluepants.tistory.com
해외주식 양도소득세 대상 절세 신고방법
해외주식 양도소득세에 대해 알아보겠습니다. 최근 해외주식에 대한 양도소득세가 변경되면서 많은 투자자들이 혼란스러워하고 있습니다. 이번 포스팅에서는 변경된 내용, 신고대상, 절세 방
bluepants.tistory.com
2024 건강검진 연기 신청방법과 과태료 피하는 법
2024년에 만 20세 이상의 성인 중 짝수년도 출생자들은 국민건강보험공단에서 실시하는 건강검진을 받아야 합니다. 검진을 받지 않으면 최대 300만 원의 과태료가 부과될 수 있습니다. 그렇다면
mm.luckyblue.pe.kr